Alquiler Para Estudiantes
Habitaciones en Calle de Preciados
Habitaciones en Calle de Preciados
No se pudo cargar la disponibilidad de retiro
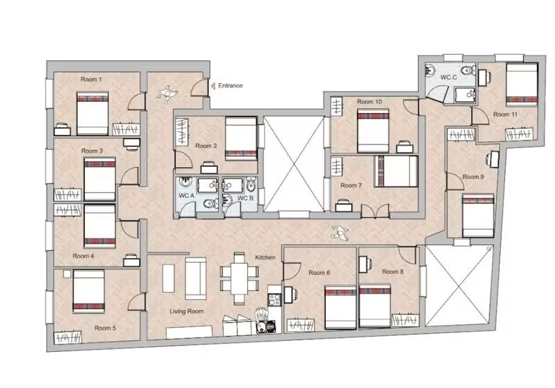
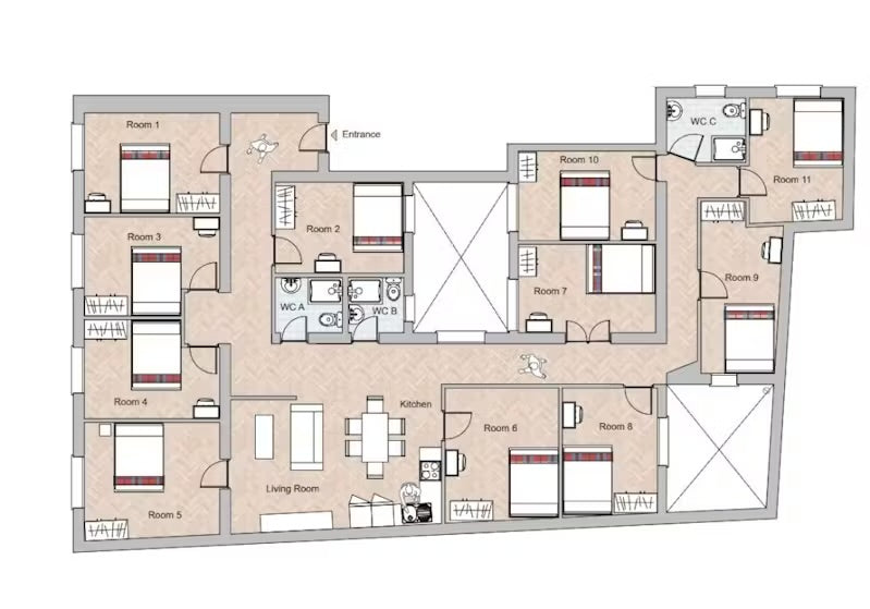
Precioso piso en Preciados Siéntete como en casa en pleno centro de Madrid con este piso situado en Preciados, una calle muy animada, con diferentes terrazas, restaurantes y tiendas. Este piso cuenta con 11 habitaciones, 3 baños completos, cocina totalmente equipada, salón con TV plana y comedor. Es ideal para jóvenes estudiantes y trabajadores que quieran estar en el centro de la ciudad y disfrutar de todo lo que ofrece Madrid. Además, cuenta con buenas conexiones de transporte como las estaciones de metro de Callao, Santo Domingo y Sol. ¡Aprovecha esta oportunidad! Callao es una de las plazas más populares de Madrid. Se encuentra justo en el límite del distrito de los Teatros de Madrid, el popular barrio de Sol en el centro de la ciudad y el hermoso distrito Real de la Ópera. La Plaza Callao es la versión madrileña de Times Square con sus altos edificios, calles concurridas y un bullicio constante. Callao no solo es genial por su ubicación céntrica, sino que es un lugar perfecto para aquellos interesados en el teatro y el cine de España. Durante todo el año hay una gran variedad de obras de teatro, musicales, películas e incluso estrenos especiales de películas. El barrio es una mezcla perfecta entre la arquitectura clásica de los años 20 y la moderna, lo que lo convierte en un gran lugar para explorar. ¡Y no te olvides de las compras! Las calles a lo largo de Callao son algunas de las mejores de la ciudad para ropa, zapatos, maquillaje y tecnología. El piso está ubicado en la calle Preciados y a solo 1 minuto de la Plaza Callao. La zona que rodea el edificio es conocida por sus buenos restaurantes y entretenimiento. Metro: Callao, línea de metro 3, 5. Autobús: varias paradas de autobús en la calle Gran Vía y Jacometrezo (calle detrás del edificio). Cercanías: estación de tren en la Puerta del Sol (7 min andando) - El Corte Inglés (grandes almacenes) - Plaza de Callao - Cines y teatros - Restaurantes y tiendas - No se permiten humos - No se permiten mascotas - Prohibidas las fiestas - Saca la basura a diario - Se permiten visitas de corta duración Habitación amueblada en Preciados Amplia habitación en Preciados, a tan solo un minuto de la Plaza de Callao. Está completamente amueblada con cama de matrimonio (140 cm), armario individual, estantería empotrada y escritorio con lámpara. Además, tiene dos ventanas con vistas al patio interior del edificio. La habitación mide 9,39 m2, tiene cerradura y calefacción eléctrica. *No se incluye ropa de cama, solo se proporciona funda de colchón.*
*Disponibilidad y Reserva*
La propiedad está disponible a partir del *1 de septiembre*. Como mencionamos anteriormente, somos una agencia inmobiliaria online, lo que significa que *no realizamos visitas guiadas*. Sin embargo, garantizamos que todas nuestras propiedades han sido *verificadas y certificadas* para asegurar la seguridad de nuestros clientes, y *certificamos la veracidad de cada anuncio*.
¡Puedes realizar tu reserva de manera rápida y segura *online*! Si tienes alguna duda o necesitas más información, no dudes en *contactarnos* a través de las vías disponibles:
- *Chat en vivo* en nuestra web
- *Correo electrónico:* alquilerparaestudiante@gmail.com
- *Formulario de contacto* en nuestra página
Nuestro equipo está aquí para ayudarte con todo lo que necesites. ¡No dudes en reservar ya tu alojamiento!
Share
























